Note: Suitable for a single international student – term of 2 years max.
Furnished 2-room apartment in a beautiful location in the historic center of Leiden. The apartment is situated on the first and second floor. Within walking distance of the Central Station, supermarkets, shopping streets, restaurants and nightlife.
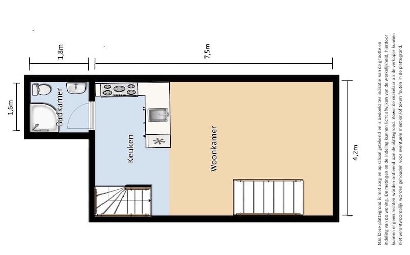
Layout: Private entrance, staircase to the first floor. Bright living / dining room with open kitchen, which is fully equipped. The modern bathroom is located at the rear of the building on the first floor and has a spacious shower, sink and toilet.
Second floor: Washing machine and dryer. Spacious bedroom in the attractive ridge of the building. The windows in the bedroom offer a beautiful view over the Museum of ‘Volkenkunde’.
Particularities:
- Rent € 1.525,- excl. gas and electricity per month (incl. internet and water)
- Deposit equal to one month’s rent
- Furnished delivery (as shown on the pictures)
- Living area approx. 60m2
- Starting date in consultation
















